济南市鸿慷机电设备有限公司位于交通便利的泉城济南,是全球生产滚动轴承和直线运动产品的领导企业---德国舍弗勒集团在山东的授权代理商。公司专营舍弗勒集团旗下两大品牌INA轴承和FAG轴承,是一家顺应经济发展需要而诞生的专业化新型高端轴承公司。多年来一直从事轴承的销售和售后技术支持,在机械行业技术方面有着非常丰富的经验,今天济南鸿慷机电进口轴承专家为大家介绍一下精密轴承在高速精密主轴设计中的应用。

主轴轴承是决定主轴单元工作性能的重要元件,主轴系统刚度、承载能力、主轴高速性能、温升性能、振动与噪声等都与精密轴承有关。
1 精密主轴选型与配置
轴承种类的选择应根据主轴技术指标,并考虑其经济性和技术复杂性,在流体轴承和滚动轴承中选择合适的轴承种类。
轴承选型与配置的依据是主轴系统受力特性及主轴技术指标要求。轴承选型与配置实际上是根据技术指标,在刚度要求、转速要求、负载大小、主轴结构设计对空间要求中求得平衡来进行轴承选型与配置。
高速机床主轴轴承一般有角接触轴承、圆柱滚子轴承和双向角接触轴承等几种形式。对于高速轻载型高速主轴,前后支承一般选用角接触轴承。
高速主轴用角接触轴承其接触角主要有 15°和25°两种。15°接触角的轴承高速性较好,但轴向承载能力和刚度较低。通常,15°接触角的角接触球轴承多用于磨床、铣床和高速加工中心主轴。
高速主轴用滚动轴承其滚珠有钢珠与陶珠两种形式,陶瓷滚动轴承与同规格、同精度的钢质轴承相比,其速度可提高 20%,温升降低 35% ~ 60%,寿命可提高 3 ~ 6 倍,陶瓷轴承的刚性较高,对内、外圈温差不敏感,运转中预紧力的变化也较小。因此在现代数控机床高速主轴中,陶瓷球轴承得到了广泛的应用。
2 高速主轴单元支承结构设计
轴承限位方式及其限位元件直接影响到主轴单元总体精度指标,同时轴向限位元件也是保证轴承预紧力的重要元件之一。
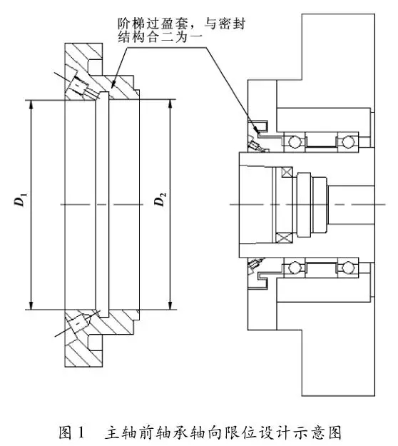
在现代数控机床主轴单元设计中,轴承轴向限位元件常用的有精密锁紧螺母和阶梯过盈套。
采用精密螺母方式安装相对简单,但对主轴螺纹部分加工精度要求高,因螺纹联结本身是一种动不平衡因素,这将影响主轴动平衡性能。因此这种结构形式一般多用于 8 000 r/min 以下的机械式主轴。
对于更高转速的主轴,其动平衡精度要求极高。
为保证动平衡精度,轴承轴向限位元件通常选用阶梯过盈套。这样不需在主轴上加工螺纹,容易保证过盈套的定位端面与轴心线垂直,主轴动平衡性好。但采用这种方式安装拆卸都需要根据主轴形式设计相应的专用工艺装备,其安装拆卸复杂,要求高。

如图 1 所示,该主轴设计中,前、后轴承轴向限位元件都采用了阶梯过盈套的形式,这样有利于提高主轴动平衡性能。阶梯过盈套内径轴向分为二段,内径分别为 D 1 和 D 2 (二者相差较小),与之相配合的轴外径也相应分为 d 1 和 d 2 二段,这二段过盈都为过盈配合,但过盈量略有不同。安装时须用热装方式完成安装,拆卸时,在过盈套注轴孔处接一高压油泵将阶梯过盈套涨开即可将阶梯过盈套取下来。但在使用定压式预紧时,确定弹簧力的大小、结构设计、装配都较复杂。对成组弹簧的制造要求高,在装配前一般应使用专门的弹簧测力装置对成组弹簧刚度与长度的一致性进行检查; 在设计中确定弹性力的大小时应充分考虑负荷大小、主轴质量、轴承本身预紧力大小等各种因素。

4 高速主轴单元润滑技术
高速主轴设计中,轴承润滑技术是至关重要的一环,润滑与主轴高速性能、温升、主轴成本、可维修性等都有密切关系。
高速主轴一般采用的润滑方式有脂润滑、油 - 气润滑等方式。高速主轴设计中,应在保证技术指标的前提下选择最为经济的润滑方式。
脂润滑是一次性永久润滑,不需任何附加装置和特别维护,但其温升较高,允许轴承工作的最高转速较低,一般 Dn 值在 1. 0 ×10 6 以下。其特点是结构简单,使用方便,无污染,通用性强,成本低。脂润滑关键技术点是选择正确润滑脂以及确定合理的润滑脂注入量。
油 - 气润滑是一种新型的、较为理想的方式,它利用分配阀对所需润滑的不同部位,按照其实际需要,定时 (间歇)、定量 (最佳微量) 地供给油 - 气混合物。使轴承总是形成良好的润滑条件,油 - 气润滑的压缩空气同时兼具冷却作用,因而可使主轴轴承Dn 值更高,可达 2 × 10 6 。油 - 气润滑对润滑油、压缩空气、供油管路设计具有严格的技术要求,其调试参数 (流量、时间间隔、压缩空气压力等) 现在并无成熟的理论或定量确定方法,调试比较麻烦。
5 结论
高速精密主轴是现代高性能数控机床的核心功能部件之一,而精密轴承技术是高速精密主轴设计中的核心技术之一,作者对高速精密主轴设计中所涉及的高速精密轴承选型与配置、高速主轴单元支承结构设计、主轴轴承预紧、高速主轴单元润滑技术等关键技术问题进行了论述,对各种高速精密主轴设计具有参考价值。
如果您对山东进口轴承、FAG轴承、INA轴承感兴趣或者有疑问的话,请点击联系我们网页右侧的在线客服,或致电:400-086-9890,山东进口轴承供应商——您全程贴心的采购顾问。
——责任编辑:济南鸿慷机电设备公司01销售顾问
版权所有www.fag66.com(济南鸿慷)转载请注明出处
